This sizing is illustrated by the base units shown below. Base cabinets with a bank of drawers will have the top-drawer measuring 6 high and the bottom two drawers at.

Pin Oleh Jerivs Uy Di Kitchen Teknologi
Flat pack options are available on all kitchen base units if required.

Standard Kitchen Wall Cabinet Sizes Uk. The width of a wall cabinet can vary to allow for single or double doors. Wall cabinet heights vary by manufacturer. 020 7870 7688 infobritishstandardcupboardscouk US Tel and email.
100 Kitchen Cabinet Depths Corner Base Dimensions. Huge range of sizes available for our kitchen base units including a selection of reduced depth kitchen base units. Kitchen Wall Units Dimensions Design.
Kitchen Carcases And Doors Cabinets. Wall Units are normally installed 400mm - 600mm above worktops and base units. If you want an under-mount sink it will need to fit within the 30 cabinet you can choose between a 26 28 sink.
In standard kitchens the wall cabinets are typically 30 or 36 inches tall with the space above enclosed by soffits. Common wall cabinet heights are 12 36 and 42 inches. Standard Kitchen Wall Cabinet Height Design.
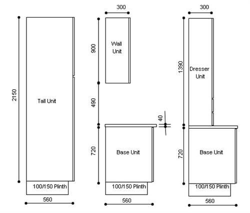
British Standard by Plain English is an affordable off-the-shelf range of high quality wooden kitchen cupboards and worktops manufactured in Suffolk. This is a small selection of the many bespoke sizes that we supply. Width- 12-36 inches.
Our assembled cabinets and ready to assemble cabinets also include widths of 5 inches and 9 inches in some styles. Check the widths available of the cabinets youre considering. Most freestanding ovens slide-in ovens and dishwashers are designed to work with 890 mm tall base cabinets.
Standard wall cabinets are generally 24 inches in depth. The average wall or upper kitchen cabinets are 30-42 in Height 12-24 in Depth and 9-36 in Width. 300mm Single Wall Unit Low Height.
Depending on the type of sink this can vary. Standard wall cabinet widths mirror the widths available for base cabinets ie 12 15 18 24 30 36 inches and 30 40 50 60 80cm. We also supply all of our popular ranges in made to measure at standard prices.
These can vary by manufacturer. Wall cabinets are usually 300 mm deep and height can vary with most wall cabinets being either 760 or. A standard wall cabinet will vary in multiples of threes between 12 inches and 36 inches.
Drawer units are usually offered in a variety of widths. Larder units are usually 30 cm wide and appliance units 60 cm wide. Standard Base Cabinet Sizes.
Kitchen cabinets are usually 60 cm deep and have widths that are multiples of 10 cm or 15 cm. Base cabinets are usually 890 mm tall 915 mm to counter-top height and 600 mm deep. Extraordinary Kitchen Cupboard Sizes Uk For Cabinet.
Wall cabinets come in standard heights between 290mm 1390mm tall most common sizes between 575 and 900mm high and between 100mm - 1000mm wide. Extended sizes are available in most of our popular ranges. Below are some of our standard Kitchen cabinet sizes.
Our attractive Shaker style Kitchen Cabinet Doors are ideal for replacing old kitchen doors available in a range of different sizes. Please call us on 01737 770 814 for more information. Standard width for a single or double door wall cabinet is generallyavailable in widths from 9 to 36 we carry them in increments of 3 ie 9 12 15.
The standard size is. Base cabinets measure 34 12 high and 36 high with countertop. A 12-inch or 15-inch tall cabinet fits neatly over a refrigerator.
Kitchen Wall Cabinet Height Uk Design. British Standard Cupboards UK Tel and email. 58 Standard Kitchen Cabinet Sizes Chart.
The Wall cabinet will be colour matched to your new kitchen doors or have a colour of your choice. What size sink fits in a 30-inch cabinet. 910 x 910mm wide The height and depth of these corner cabinets will remain the same as standard base cabinets.
The toe kick measures 4 12 high the door is 24 high and the top drawer is 6 high. Create your perfect kitchen and choose from our ide selection of base units wall units and larder units. Choose from a variety of kitchen cabinets including wall base cabinets corner cabinets and larder units.
Height Under Kitchen Cabinets. Where the cabinets run all the way to the ceiling 48-inch cabinets are the logical choice.

35 Inspirational Height Of Upper Cabinets Kitchen Wall Cabinets Upper Kitchen Cabinets Kitchen Cabinet Dimensions

Image Result For Uk Room Size Dimensions Kitchen Cabinet Dimensions Kitchen Cabinet Sizes Kitchen Cabinet Layout

Standard Kitchen Cabinet Depth Ikea Kitchen Cabinet Sizes Upper Cabinet Dimensions Kit Kitchen Cabinets Height Kitchen Cabinet Sizes Kitchen Cabinet Dimensions

Kitchen Cabinet Dimensions Home Design And Decor Reviews Kitchen Cabinet Dimensions Kitchen Cabinet Dimensions Standard Independent Kitchen

Kitchen Cabinets Standard Sizes Metric Kitchen Cabinets Height Kitchen Cabinets Kitchen Wall Cabinets

Kitchen Vertical Dimensions Kitchen Cabinet Sizes Kitchen Cabinet Dimensions Kitchen Wall Cabinets

Height Of Kitchen Cabinets Us Cabinet Dimensions Amazing Upper 1929 215 1449 Kitchen Wall Cabinets Kitchen Cabinet Height Kitchen Cabinets Decor

Kitchen Cabinet Dimensions Kitchen Cabinet Height Cabinet Dimensions

Kitchen Cabinet Heights Are Important To Remember When Remodeling Your Kitchen Contact Me Kitchen Cabinet Dimensions Kitchen Cabinet Sizes Cabinet Dimensions

Height Of Kitchen Cabinets Us Cabinet Dimensions Amazing Upper 1929x1449 Kitchen Wall Cabinets Kitchen Cabinet Height Kitchen Cabinets Decor

Baid Co Uk On Twitter Kitchen Room Design Kitchen Cabinet Dimensions Kitchen Furniture Design

Width Of Upper Kitchen Cabinets Kitchen Cabinet Sizes Kitchen Base Cabinets Kitchen Cabinet Dimensions

Luxury Standard Kitchen Cabinet Door Sizes Kitchencabinetunitsizes Kitchen Cabinet Dimensions Kitchen Cabinet Sizes Kitchen Cabinets Height

Icymi Kitchen Cabinet Depth Dimensions Kitchencabinetsdimensions Kitchen Cabinet Dimensions Cabinet Dimensions Kitchen Cabinets

35 Inspirational Height Of Upper Cabinets Kitchen Cabinet Plans Upper Kitchen Cabinets Kitchen Cabinet Dimensions

Exsisting Footprint Kitchen Cabinet Layout Kitchen Designs Layout Kitchen Floor Plans



